ВоскресеньеВс, 14 декабря 13:00 16+
Сейчас  °C
USD$ 79,73 EUR 93,56

Застройщика ищут для КРТ в районе улицы Правды в Нижнем Новгороде

11 мая 2023 года, 12:23

Объявлен аукцион.

Застройщика ищут для КРТ в районе улицы Правды в Нижнем Новгороде

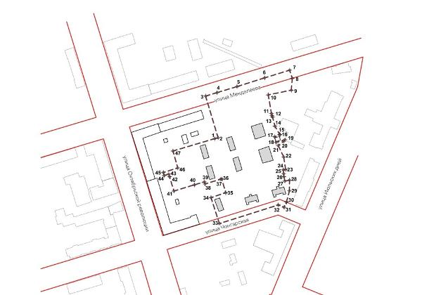
Застройщика ищут для КРТ в районе улицы Правды в Нижнем Новгороде, сообщается на официальном сайте о проведении торгов.

Институт развития агломерации Нижегородской области разыгрывает право на заключение договора о комплексном развитии территории жилой застройки в границах улиц Правды, Чонгарской, Менделеева в Ленинском районе. Изначально за это запрашивается 2,4 млн рублей, но в ходе торгов сумма может измениться. Известно, что шаг аукциона составит 123,1 тысячи рублей.

Заявки на участие в аукционе будут приниматься до 15 июня. Сами торги пройдут утром 26 июня.

Напомним, текущей зимой прошли общественные обсуждения среди жителей домов, которые попадают под снос при реализации проекта КРТ. В итоге нижегородцы единогласно решили принять участие в проекте. Ранее торги по выбору застройщика собирались провести в апреле.

Автор: Наталья Битулина

баннер vk
Смотрите также
Рекомендуем
Эксклюзив
Проект третьего этапа благоустройства парка им. 1 Мая готовится в Нижнем Новгороде
Он включит в себя ремонт ограждения и реконструкцию территории около пруда.
Экономика
Россия и Нижегородская область стоят на пороге кадровой революции
Искусственный интеллект поможет смягчить кадровый дефицит.
Общество
Эрадж Боев: «2025 год стал для Нижегородской области прорывным в выстраивании связей с Ираном»
К. и. н., директор НОЦ востоковедения рассказал в интервью ИА «Время Н» о ключевых этапах развития российско-иранских отношений.
Общество
Врач Игорь Табаков дал нижегородцам советы по отказу от вейпа
С 8 по 14 декабря проходит неделя профилактики потребления никотинсодержащей продукции.

Самые интересные
новости и эксклюзивы —
в нашем канале МАХ

Подписаться