СредаСр, 11 марта 10:39 16+
Сейчас  °C
USD$ 78,74 ▼-0,41 EUR 91,90 ▲0,06

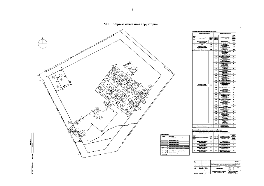
Жилой комплекс с двумя детсадами и школой появится в Советском районе

22 февраля 2022 года, 10:34

Его будут возводить в четыре этапа.

Жилой комплекс с детсадом и школой появится в Советском районе

Новый ЖК появится в Советском районе, сообщается в приказе регионального минграда от 24 февраля.

Жилой комплекс будет располагаться вдоль реки Старка в границах улиц Гаражной, Бориса Панина и Высоковского проезда. Документацию по планировке территории подготовили компании «ВолгоВятПроектСтрой» и «Архстрой» по заказу специализированного застройщика «Андор».

Предполагается, что на указанной территории появятся три многоквартирных дома со встроенными помещениями общественного назначения и подземными парковками на 657 машиномест. Этажность домов будет варьироваться от 3 до 24 этажей. В одном из домов будет находиться встроенный детсад на 60 мест.

Также в жилом комплексе будет построено трехэтажное здание школы, рассчитанное на 950 учеников, и еще одно отдельное здание детсада на 70 мест. Помимо этого, там появится трехэтажный дом творчества.

Строительство будет происходить в несколько этапов. На первом из них будет построен только один многоквартирный дом и объект электроснабжения. Вторая очередь строительства предполагает возведение дома творчества и детсада, а на третьем этапе будут возведены оставшиеся два дома. Строительство школы будет происходить на последнем этапе.

Автор: Наталья Битулина

баннер vk
Смотрите также
Рекомендуем
Общество
Татьяна Грачёва: «Нижегородская область — лучшая в России по сохранности архивов»
К столетию Евгения Евстигнеева в Нижнем Новгороде подготовят наиболее полную родословную великого актера.
Общество
Михаил Пучков: «Важно бережно относиться к русскому языку»
По мнению министра образования региона, осознанное ограничение употребления иностранных слов позволяет сохранить уникальный характер и самобытность русской речи.
Наука и технологии
Галина Муромцева: «Международное сотрудничество дает возможность рассказывать про Россию как космическую державу»
О том, что такое «космическая дипломатия» и какие возможности в области исследований космоса предоставляет Нижегородский планетарий имени Г. М. Гречко, в интервью ИА «Время Н» рассказала директор планетария Галина Муромцева.
Общество
Как защитить печень от тихого вируса: неделя борьбы с гепатитом С:
Хронический гепатит С — скрытый убийца печени, который провоцирует цирроз и рак у половины инфицированных. Он лидирует среди вирусных гепатитов: миллионы носителей не подозревают о проблеме из-за отсутствия симптомов.

Самые интересные
новости и эксклюзивы —
в нашем канале МАХ

Подписаться